当前位置:首页>专题论坛>全部
-
·
求购功放
(作者:foreveryoung 时间: 点击数: 100)
- 收藏
-
我有kef 107/2 一对,不知哪位仁兄由于之匹配的功放(150W-250W)愿意出让?
令外,我有kefQ90一对,9成新,购入9000元,6500元出让。
·
(作者:ldh 时间:2002-08-30 11:49:16)- 如想得到交好的声音,最好使用双功放推动。 大多数情况下他的低频臃肿肥胖,慢、散、拖。但是只要推好了,又另是一番滋味,非常舒服松荡。前提是搭配控制力阻尼力足够好的功放。并不需要太大的功率。
·
(作者:cfcfc 时间:2002-08-30 12:08:41)- 我是用105.3,有空交流交流。0577-81828384。兄台可以留电话吗?
·
(作者:推荐 时间:2002-08-31 15:07:35)- 大力推荐“英国之宝”200W的前后级
·
(作者:foreveryoung 时间:2002-08-31 21:40:46)- 多谢各位高手提供的信息,小弟想问问M.F A1001怎样?(纯A类100W的) 是否有关于A1001的信息可共小弟参考?
·
(作者:foreveryoung 时间:2002-08-31 22:09:45)- A1001是200W的,好像素质不够高耶...
-
·
飞利浦 CD-380怎样
(作者:峰 时间: 点击数: 54)
- 收藏
-
这款机器怎么样,有人欲转让我,CD-4转盘
-
·
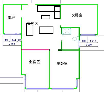
各位帮我看看,我也遇到房子问题了
(作者:烧录一族 时间: 点击数: 112)
- 收藏
-
1,会客区与餐厅区连在一起,宽4米,长10米,真的很头疼,对于这样的房间有何好建议?
2,这样的房间如何配置空调,不用柜机,2匹*1?1匹*2?1.5匹*2?1.5匹+1匹?哪个好呀!
谢谢!
·
(作者:color4 时间:2002-08-28 18:54:51)- 长边摆放,听音面积4*6米
不过看图您的客厅靠阳台窗子太多,玻璃可是好声的杀手.;)
我的客厅用了一台三菱1.5匹单冷,足够制冷了.噪声很小.- 长边摆放,听音面积4*6米
·
(作者:sunzhboy 时间:2002-08-28 19:41:44)- 40平米估计为6000W
可买一台6000w柜机
或隔断买两台3200w- 40平米估计为6000W
·
(作者:czlau 时间:2002-08-28 21:05:59)- 1.为了音响,只好牺牲主房的隐蔽性,可通过缩小厕所来扩大一点主房.
2.空调本来是柜机好过壁挂的,但看来你的地方只能用壁挂式的了.
3.客厅与餐厅可用来隔断,有几种方法,造墙对音响最好可是不好看,估计家里人是通不过的.:)还可以用电视柜/音响柜/博古架等.
4.后面玻璃的处理,听刘汉盛的:聆聽位置後面這片?其?可以吸,也可以擴散。用吸是怕您離後?太近,反射音太?姟S脭U散是因為離後?較遠,擴散可以使聲音更自然。吸音材料的厚度呢?您不能用一般窗簾那麼薄的布料吸音,因為效果不彰。至少都要有厚絨布的厚度才可以。而且,如果您要像窗簾一般吊在側?,請注意要打皺摺,就像窗簾的作法一樣。
5.另一个方案,也可以把主卧与次卧对调,如下图.·
(作者:烧录一族 时间:2002-08-29 06:41:03)- 除了卫生间门口对着的那堵墙可动以外,其余墙都不能动!
·
(作者:sword 时间:2002-08-29 09:30:06)- 你这间房应该是框剪结构,厨房、卫生间的墙是万万不可拆的——因为防水和承重原因。主卧和厅之间的墙局部可拆。建议如下:主卧门后退,把这部分的墙拆了(连同与厅之间的分隔墙一起),使主卧成为一个规范的矩形,这样可以放大原来的餐厅区——使之也可成为一个小会客区(按你报的尺寸好象也有20多平米吧),剩下的你就可以布置你的听音区了,如果要做隔断,可以做活动的(你去浦东科技馆看看顶楼——老江吃饭的那间——活动墙参考一下)。
空调么看来只能选3匹的机器了!- 你这间房应该是框剪结构,厨房、卫生间的墙是万万不可拆的——因为防水和承重原因。主卧和厅之间的墙局部可拆。建议如下:主卧门后退,把这部分的墙拆了(连同与厅之间的分隔墙一起),使主卧成为一个规范的矩形,这样可以放大原来的餐厅区——使之也可成为一个小会客区(按你报的尺寸好象也有20多平米吧),剩下的你就可以布置你的听音区了,如果要做隔断,可以做活动的(你去浦东科技馆看看顶楼——老江吃饭的那间——活动墙参考一下)。
·
(作者:sword 时间:2002-08-29 09:41:33)·
(作者:双人鱼 时间:2002-08-29 10:25:39)·
(作者:双人鱼 时间:2002-08-29 10:30:46)- 拆墙前应该让建筑方面的朋友帮看一下可不可以拆,如果有原建筑图,那就更保险了。
·
(作者:sword 时间:2002-08-29 14:03:49)- 鱼兄,本人在建设行业地干活,红色的线代表活动墙,不是忘了门,看烧录兄的房子款式还是蛮新的,结构不象板式高层,所以,分割墙顶部会有圈梁的,因此不用太害怕,我也在上海,虹桥世贸商城,烧录兄的房子在哪里?告诉我可以给建议。
·
(作者:烧录一族 时间:2002-08-30 15:34:31)- 我的房子在江宁路武定路,静安体育中心对面。
·
(作者:sword 时间:2002-08-31 19:15:31)·
(作者:烧录一族 时间:2002-08-31 19:35:31)- 是“申发展大厦”,申银万国的
·
(作者:sword 时间:2002-08-31 20:58:54)- 判断能不能拆墙办法很简单,在欲拆除部位的房顶往下量30CM处,铲掉一些涂料和沙浆层,露出来的是砖即可拆(30CM一般是顶部圈梁的厚度,注:圈梁不可拆),卫生间门前的那堵墙,从起点处横向铲掉涂料和沙浆层,露出来的是砖即可拆(表明此处无混凝土浇筑立柱),曾经有朋友把混凝土浇筑立柱也拆了,又竖了一根钢管支撑(闲来可以跳钢管舞wahahaha~~~~~~~~~~~~)——后面括号里是说笑。
说句大话——上海没有我不知道的建筑——我可以了解全部的建筑项目报建和施工许可证发放情况。- 判断能不能拆墙办法很简单,在欲拆除部位的房顶往下量30CM处,铲掉一些涂料和沙浆层,露出来的是砖即可拆(30CM一般是顶部圈梁的厚度,注:圈梁不可拆),卫生间门前的那堵墙,从起点处横向铲掉涂料和沙浆层,露出来的是砖即可拆(表明此处无混凝土浇筑立柱),曾经有朋友把混凝土浇筑立柱也拆了,又竖了一根钢管支撑(闲来可以跳钢管舞wahahaha~~~~~~~~~~~~)——后面括号里是说笑。
- 鱼兄,本人在建设行业地干活,红色的线代表活动墙,不是忘了门,看烧录兄的房子款式还是蛮新的,结构不象板式高层,所以,分割墙顶部会有圈梁的,因此不用太害怕,我也在上海,虹桥世贸商城,烧录兄的房子在哪里?告诉我可以给建议。
·
(作者:sunzhboy 时间:2002-08-29 13:53:42)
-
·
关于信心5的对话
(作者:taoge 时间: 点击数: 166)
- 收藏
-
不知道 (24字)(dadoudou 今天9:04 阅读 3)
我很想搞一对二手C5玩玩。
二手C5? (空)(爱乐者 今天11:00 阅读 3)
yes1 (空)(dadoudou 今天20:22 阅读 1)
你不是已经有了信心3吗? (28字)(爱乐者 今天20:41 阅读 1)
还要进信心2号,干嘛还要5号?
我感到像C5那样难玩的音箱可能越来越少,我就喜欢难玩的DD。 (空)(dadoudou 今天22:38 阅读 1)
就喜欢难玩的DD~ (42字)(爱乐者 今天22:42 阅读 1)
知难而上而不是知难而退,这种精神值得提倡!
C5难玩有它的道理。 (101字)(dadoudou 今天22:48 阅读 1)
从ATC和丹拿最近推出的新品来看,都比以前的产品好推了,我感觉到这些产品设计上的妥协要比新技术比重更大。
这不是妥协不妥协的问题~ (52字)(爱乐者 今天22:52 阅读 1)
是大势所趋,对生产厂家来讲毕竟市场才是最重要的一点。
但对我们来说是发烧不发烧的问题! (117字)(dadoudou 今天23:01 阅读 1)
我很仔细的多次通过大小证据,就高音而言,我并没有感到比330有更令人激动的地方。或许把他们放在一起听,才会有不同的感觉。
330对我们的耳朵来说可能已经足够满足了要求吧~ (71字)(爱乐者 今天23:06 阅读 1)
可是从科技发展的理论上来讲并没有到达尽头,虽然在感觉上没有什么大的突破~
花钱是买感觉,不是买技术。 (空)(dadoudou 今天23:08 阅读 1)
没有一点科技含量还谈什么感觉~ (空)(爱乐者 今天23:11 阅读 1)
你就去买技术吧! (空)(dadoudou 今天23:13 阅读 1)
-
·
刘斑竹,木子兄,各位DX快来呀!
(作者:sword 时间: 点击数: 87)
- 收藏
-
小弟好友近日购得世霸concerto home音响一对(要1W耶),不知配何种功放,寝食难安呀!各位DX帮帮忙吧!
